• Home
  • Garnet Place, West Drayton
Garnet Place, West Drayton Garnet Place, West Drayton

Garnet Place, West Drayton

2 bedroom Apartment for sale

Guide Price £387,000

  • 2 bedroom
  • 2 bathroom
  • 1 reception

Key Features

  • Two Double Bedroom Apartment
  • Open Plan Living Space
  • Spacious Balcony
  • Luxury Bathroom & En Suite Shower Room
  • Underfloor Heating
  • Long Lease
  • Secure Underground Parking Space
  • Short Walk to Elizabeth Line
  • Lift
  • Communal Roof Terrace

Description

DESCRIPTION
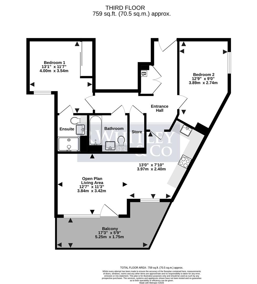
Meticulously designed by renowned developers 'Redrow PLC' and located on the third floor of 'Fitzroy Court' which is situated in the sought after 'Garnet Place' and within a short walk of West Drayton's Elizabeth Line station. A two double bedroom apartment with circa 759 sq ft of accommodation which would meet the needs of the most discerning purchaser and is served by a communal entrance with security entry and lift to all floors. On entering the apartment you are met with a really inviting entrance hallway with two useful storage cupboards (including plumbing for a washing machine in one), open plan living space which features a stunning grey high gloss modern fitted kitchen with appliances, living/dining room and a door out onto a spacious terrace. The balance of the accommodation comprises a principal double bedroom which benefits from a luxury en-suite shower room and fitted wardrobe, a further double bedroom and modern family bathroom.

WINDOWS
Double glazed sealed unit windows.

HEATING & HOT WATER
The underfloor heating system (to all rooms except the bathrooms) is served by a communal district boiler which also provides the domestic hot water.

OUTSIDE
Spacious balcony. The development also has a communal roof terrace as well as communal garden which are thoughtfully landscaped and well maintained. The apartment has a permit to park one vehicle in the secure gated underground car park (which also benefits from electric vehicle charging points). There is also a communal bike store.

LOCATION
Fitzroy Court is situated within a short walking distance of the town centre with Elizabeth Line. Local shopping and bus routes are all within easy reach. London Heathrow Airport, the motorway network, Stockley Business Park and Uxbridge town centre are all within easy motoring distance.

TENURE

We understand that the property is held on a lease term of 999 years from 1st January 2018 (991 years remaining).*

GROUND RENT

We understand that the ground rent currently payable is £350 per annum. The ground rent is reviewed a total of 4 times on the following dates: 01/01/2033, 01/01/2048, 01/01/2063 and 01/01/2078. The increase is calculated proportionately to the increase in the Retail Price Index from the lease commencement cate. *

SERVICE CHARGE

We understand the annual service charge payable is currently £3,677.92 per annum.*

COUNCIL TAX BAND

We understand that the current council tax band is D.

SERVICES

Mains electricity, water and drainage.

VIEWINGS

Strictly by appointment with R Whitley & Co.


Location


Floorplan

Floorplan

EPC

EPC for Garnet Place, West Drayton

Virtual Tour


Book a viewing 01895 424057
Share

Mary-Joy Kendall

Residential Sales
Calculate Your Stamp Duty
£
Results
Stamp Duty To Pay:
Effective Rate:
Tax Band % Taxable Sum Tax